-
ZVI-FV系列气浮并联负刚度主动隔振平台zolix
详细信息| 询价留言品牌:zolix 型号:ZVI-FV系列 加工定制:是 ZVI-FV系列气浮并联负刚度主动隔振平台
特点
-
空气弹簧支撑,磁负刚度机构
-
机械式倒立摆负刚度机构并联正刚度机构
-
6自由度主动隔振
-
主动隔振带宽低至0.5Hz起
-
标品负载*大支持4600-6200KG
-
水平向电机峰值推力高达160N
-
总体规格(长、宽、高)多种规格可选
-
核心控制系统全部自研
-
核心部件国产化
技术指标
-
主动隔振带宽:0.5-150Hz
-
台面稳定性:≤±5um
-
传递率:≤-20dB@2Hz,≤-35dB@5Hz,≤-45dB@10Hz
-
水平向电机峰值推力高达160N
-
系统支持*大功率700W
-
台面平面度:NTBP:0.02-0.05mm/600mm ×600mm
NTBK:0.1mm/600mm×600mm
大理石台面:0级、1级、2级、3级可选(GB/T20428-2006)
-
台面厚度:100/200/300mm
-
孔径:可定制孔径
-
孔距:可定制孔距或特殊位置打孔
-
标品单腿*大承载能力:1600Kg
命名规则
选型表:(-K、-O参考具体台面信息)
产品型号
整体规格
(L*W:mm)
台面上负载要求(kg)
台面厚度(mm)
隔振器规格
(L*W*H:mm)
单腿重量
ZVI-FV-30-12M
3000×1200
100-1000
350
374×220×200
35kg
ZVI-FV-30-12M-Z(重载)
3000×1200
100-2000
400
360×250×200
35Kg
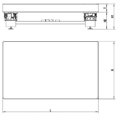
尺寸图:型号
尺寸( mm)
L
W
T
H1
H2
ZVI-FV-30-12M
3000
1200
350
900
550
ZVI-FV-30-12M-Z(重载)
3000
1200
400
900
500
-
-
-
产品搜索
联系方式
- 联系人:市场部
- 电 话:010-56370168-696
- 手 机:13810146393
- 传 真:010-56370168
- 邮 编:101102
- 地 址:北京市中关村科技园区通州园金桥产业基地环科中路16号,联东U谷中试区68号B座
- 网 址: https://bjzolix.cn.goepe.com/
http://www.bjzolix.com


手机访问



